Skip To Content

Rock Cut Rd Turnpike

Newburgh, NY 12550
  • $479,000
  • STATUS: Active
  • ON SITE: 264 Days
  • MLS #: 877531
UPDATED: 47 min ago
$479,000
  • 0
    BEDS
  • 2
    ACRES
  • 0
    BATHS
  • 0
    1/2 BATHS
Neighborhood:
Type:
Vacant Land / Lots
County:

Description

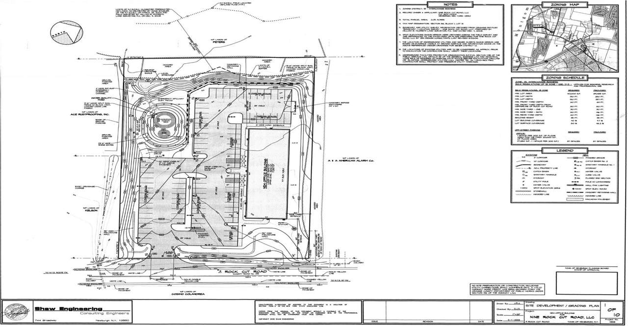
This 2 acre commercial parcel is located near the intersection of Route 17k and Rock Cut Rd. and just seconds from the nearest route 84 exit. It rests in the Town of Newburgh IB zone (business zone) with municipal water, sewer and gas along Rock Cut Rd. Preliminary engineering work has been completed including a site plan that interprets zoning, setbacks, and topo. The site plan facilitates a 17,280 sf, 2 story building however there are many other possibilities. See brochure for additional details or call List Agent for more info.

Monthly Payment Calculator



© 2026 OneKey MLS. All rights reserved. IDX information is provided exclusively for consumers' personal, non-commercial use and may not be used for any purpose other than to identify prospective properties consumers may be interested in purchasing. Information is deemed reliable but is not guaranteed accurate by the MLS or Mark Seiden Real Estate Team. Data last updated: 2026-03-11T14:18:36.987.
www.lowerhudsonvalleyproperties.com/homes/165075178
Print Image

Rock Cut Rd Turnpike Newburgh, NY 12550

  • Price: $479,000
  • Status: Active
  • On Site: 264 Days
  • Updated: 47 min ago
  • MLS #: 877531
0
Beds
0
Baths
0
½ Baths
2
Acres
Neighborhood:
Newburgh (Town)
County:
Orange
Area:
Newburgh (Town)
Elementary School:
East Coldenham Elementary School
Middle School:
Valley Central Middle School
High School:
Valley Central High School
School District:
Valley Central (Montgomery)
Property Description
This 2 acre commercial parcel is located near the intersection of Route 17k and Rock Cut Rd. and just seconds from the nearest route 84 exit. It rests in the Town of Newburgh IB zone (business zone) with municipal water, sewer and gas along Rock Cut Rd. Preliminary engineering work has been completed including a site plan that interprets zoning, setbacks, and topo. The site plan facilitates a 17,280 sf, 2 story building however there are many other possibilities. See brochure for additional details or call List Agent for more info.
Exterior Features

Cross Street Route 17k Lot Features LevelNear Golf CourseNear SchoolNear ShopsPart Wooded Waterfront YN No

Property Features

Current Use Vacant Electric Company Central Hudson Senior Community YN No Sewer Public Sewer Special Listing Conditions None Tax Annual Amount 6684 Tax Section 86 Tax Source Municipality Utilities Cable AvailableElectricity AvailableNatural Gas AvailablePhone AvailableSewer AvailableWater Available Utilities On Abutting Site CableElectricGasSewerWater Water Source Public

Listing courtesy of John Demarco of Century 21 Alliance Rlty Group: 845-297-4700
© 2026 OneKey MLS. All rights reserved.


© 2026 OneKey MLS. All rights reserved. IDX information is provided exclusively for consumers' personal, non-commercial use and may not be used for any purpose other than to identify prospective properties consumers may be interested in purchasing. Information is deemed reliable but is not guaranteed accurate by the MLS or Mark Seiden Real Estate Team. Data last updated: 2026-03-11T14:18:36.987.
 
https://bt-photos.global.ssl.fastly.net/wpmls/1280_boomver_1_877531-1.jpg https://bt-photos.global.ssl.fastly.net/wpmls/1280_boomver_1_877531-1.jpg https://bt-photos.global.ssl.fastly.net/wpmls/1280_boomver_1_877531-1.jpg
Logo
Mark Seiden Real Estate Team
1238 Pleasantville Rd
Briarcliff Manor NY, 10510