Skip To Content

779 Riverside Drive , C63/C64

New York (Manhattan), NY 10032
  • $6,500/mo.
  • STATUS: Active
  • ON SITE: 118 Days
  • MLS #: 902086
Rental
UPDATED: 51 min ago
$6,500/mo.
Rental
  • 5
    BEDS
  • 0.34
    ACRES
  • 3
    BATHS
  • 0
    1/2 BATHS
  • 2,400
    SQFT
Neighborhood:
Type:
Rentals
Built:
1926
County:
Area:

School Ratings & Info

Description

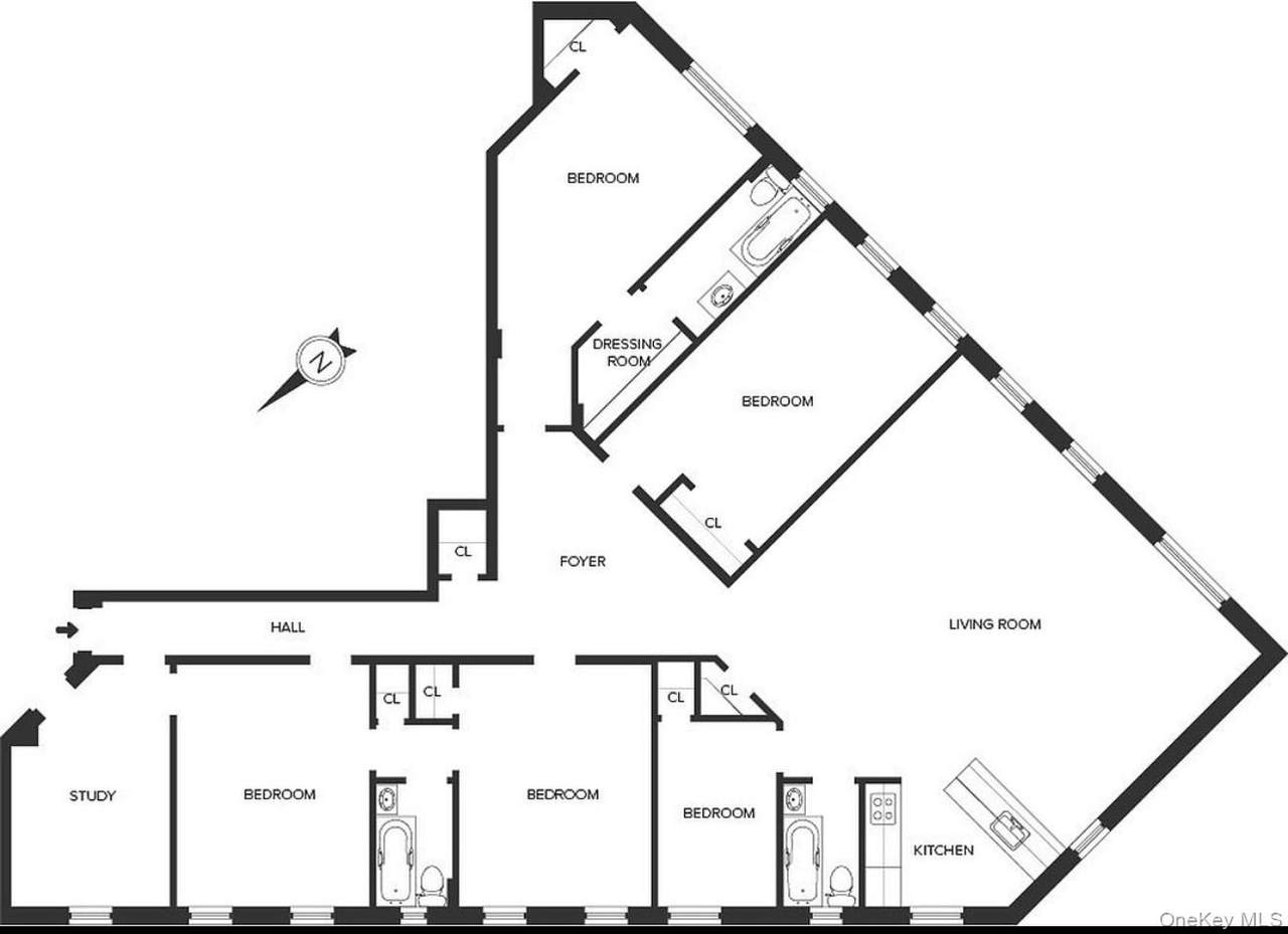
Welcome home to this sun-drenched, sprawling and spacious 4-5 bedroom apartment in The Crillon Court, a pre-war, doorman condominium located in the alluring Audubon Park Historic District at Riverside Drive and West 157th Street. This loft-like top floor, corner apartment overlooks the Audubon Park Oval and has seasonal views of the Hudson River. The kitchen is open and features cherry cabinets, granite counter tops, stainless steel appliances and includes a dishwasher and convection microwave. The master bedroom overlooks the parks of Riverside Drive and has a dressing room leading to an en-suite windowed bathroom. The other three bedrooms are generously sized with good sized closet space. There is also an enormous, windowed home office with separate entrance and a maid's room/pantry with washer/dryer installed. Built in 1926, The Crillon Court has been meticulously restored to its original grandeur, reviving a quality of life from a bygone era. The friendly and efficient staff includes doorman porter and live-in resident superintendent. 24-hour valet parking is accessed directly from the lobby elevator. Conveniently located in Washington Heights and surrounded by a thriving neighborhood rich in history. The building has an easy access to multiple subway lines and bus stops and nearby Riverside Park, Riverbank State Park and Fort Washington Park.



© 2025 OneKey MLS. All rights reserved. IDX information is provided exclusively for consumers' personal, non-commercial use and may not be used for any purpose other than to identify prospective properties consumers may be interested in purchasing. Information is deemed reliable but is not guaranteed accurate by the MLS or Mark Seiden Real Estate Team. Data last updated: 2025-12-12T13:18:22.303.
www.lowerhudsonvalleyproperties.com/homes/166964518
Print Image

779 Riverside Drive , C63/C64 New York (Manhattan), NY 10032

  • Price: $6,500/mo.
  • Status: Active
  • On Site: 118 Days
  • Updated: 51 min ago
  • MLS #: 902086
5
Beds
3
Baths
0
½ Baths
0.34
Acres
2,400
SQFT
1926
Built
Neighborhood:
New York
County:
Manhattan
Area:
New York
Property Description
Welcome home to this sun-drenched, sprawling and spacious 4-5 bedroom apartment in The Crillon Court, a pre-war, doorman condominium located in the alluring Audubon Park Historic District at Riverside Drive and West 157th Street. This loft-like top floor, corner apartment overlooks the Audubon Park Oval and has seasonal views of the Hudson River. The kitchen is open and features cherry cabinets, granite counter tops, stainless steel appliances and includes a dishwasher and convection microwave. The master bedroom overlooks the parks of Riverside Drive and has a dressing room leading to an en-suite windowed bathroom. The other three bedrooms are generously sized with good sized closet space. There is also an enormous, windowed home office with separate entrance and a maid's room/pantry with washer/dryer installed. Built in 1926, The Crillon Court has been meticulously restored to its original grandeur, reviving a quality of life from a bygone era. The friendly and efficient staff includes doorman porter and live-in resident superintendent. 24-hour valet parking is accessed directly from the lobby elevator. Conveniently located in Washington Heights and surrounded by a thriving neighborhood rich in history. The building has an easy access to multiple subway lines and bus stops and nearby Riverside Park, Riverbank State Park and Fort Washington Park.
Exterior Features

Architectural Style Other Carport YN No Construction Materials Brick Garage YN No Property Attached YN No Waterfront YN No

Interior Features

Appliances DishwasherDryerRefrigeratorStainless Steel Appliance(s)Washer Attic None Basement YN No Cooling Wall/Window Unit(s) Interior Features First Floor BedroomEat-in KitchenFormal DiningHigh CeilingsMarble CountersOpen FloorplanOpen KitchenOriginal DetailsPantryPrimary BathroomWasher/Dryer Hookup Rooms Total 10

Property Features

Additional Fees YN No Association YN No Heating Baseboard Lease Term 12 Months Pets Allowed Call Property Sub Type Condominium Rent Includes HeatWater Senior Community YN No Sewer Public Sewer Smoking YN No Special Listing Conditions None Utilities See Remarks Water Source Public

Listing courtesy of Chi Jin Abr of Landmark International R E LLC: 718-898-8300
© 2025 OneKey MLS. All rights reserved.


© 2025 OneKey MLS. All rights reserved. IDX information is provided exclusively for consumers' personal, non-commercial use and may not be used for any purpose other than to identify prospective properties consumers may be interested in purchasing. Information is deemed reliable but is not guaranteed accurate by the MLS or Mark Seiden Real Estate Team. Data last updated: 2025-12-12T13:18:22.303.
 
https://bt-photos.global.ssl.fastly.net/wpmls/1280_boomver_1_902086-1.jpg https://bt-photos.global.ssl.fastly.net/wpmls/1280_boomver_1_902086-1.jpg https://bt-photos.global.ssl.fastly.net/wpmls/1280_boomver_1_902086-1.jpg
Logo
Mark Seiden Real Estate Team
1238 Pleasantville Rd
Briarcliff Manor NY, 10510